Welcome to Realton

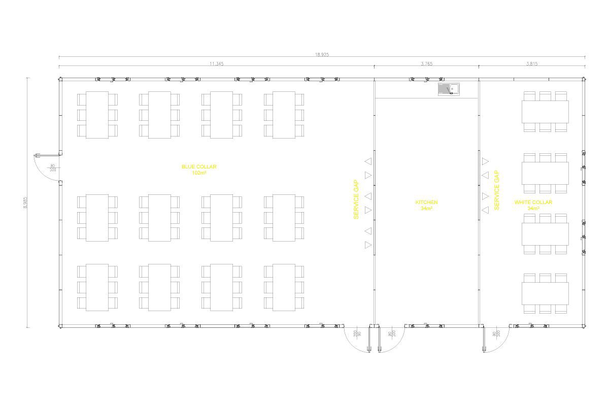
170 m² Prefabrik Yemekhane

Açıklama

Alpa Çelik Ev Koleksiyonu

Geleceğe Yakından Bakın: Çelik Çağı Başlıyor! 🔍🏡

Alpa Çelik Yapı ile sadece ev inşa etmiyoruz; dayanıklı, modern ve sürdürülebilir bir geleceğin temelini atıyoruz. Büyüteç altındaki bu detaylar, çeliğin mimariye getirdiği devrimi gözler önüne seriyor.

Çelik Çağının Avantajları:

  • Geleceğin Güvencesi: Üstün dayanıklılık ve deprem güvenliği.
  • Sınırsız Tasarım: Modern ve estetik mimaride özgürlük.
  • Hız ve Kalite: Geleneksel yöntemlere göre çok daha hızlı teslimat.
  • Sürdürülebilirlik: Çevre dostu ve uzun ömürlü yapılar.

İstediğiniz modeli, istediğiniz m²’de yapabiliriz.

Siz de çelik çağının konforunu ve güvenliğini deneyimlemek için hemen bize ulaşın.

Anahtar Teslim için: 0535 882 32 09 arayınız.

FİRMAMIZIN SORUMLULUĞUNDA OLAN İŞLER

  • İç ve dış cephe boyalarının yapılması (istenilen renkte)
  • Dış kapının (çelik kapı) takılması
  • İç kapıların (Amerikan kapı) takılması
  • Tüm pencerelerin PVC doğramadan çift ısıcamlı takılması
  • Sıhhi tesisatların dışarı kadar çekilmesi (test edilip teslim edilir)
  • Elektrik tesisatlarının dışarı kadar çekilmesi (test edilip teslim edilir)
  • Vitrifiye ve armatür gruplarının temini (montaj müşteri tarafından yapılır)
  • Çatı kaplaması, izolasyonu, dere inişleri ve olukların montajı

MÜŞTERİMİZİN SORUMLULUĞUNDA OLAN İŞLER

  • Zemin betonu, hafriyat ve çevre düzenlemeleri
  • Zemin ve duvar kaplamaları (şap, seramik, fayans, halı vb.)
  • Yapı kurulumu için gerekli izinler
  • Dış bağlantılar (elektrik, atık su, temiz su, sayaçlar)
  • Montaj ekibinin konaklama ve yemek giderleri
  • Mutfak dolapları
  • Nakliye ve nakliye sigortası

Benzer Ürünler